Projekt domu TK20L
TK20L to doskonały dom, gdy dysponujemy niewielkimi środkami finansowymi. Po pierwsze ze względu na jego małe gabaryty i prostą konstrukcję, która sprawi, iż dom będzie niedrogi w wykonaniu, a po drugie będzie również oszczędny w eksploatacji. Zwarta bryła budynku oraz stosunkowo nieduże przeszklenia znacznie ograniczą straty ciepła.
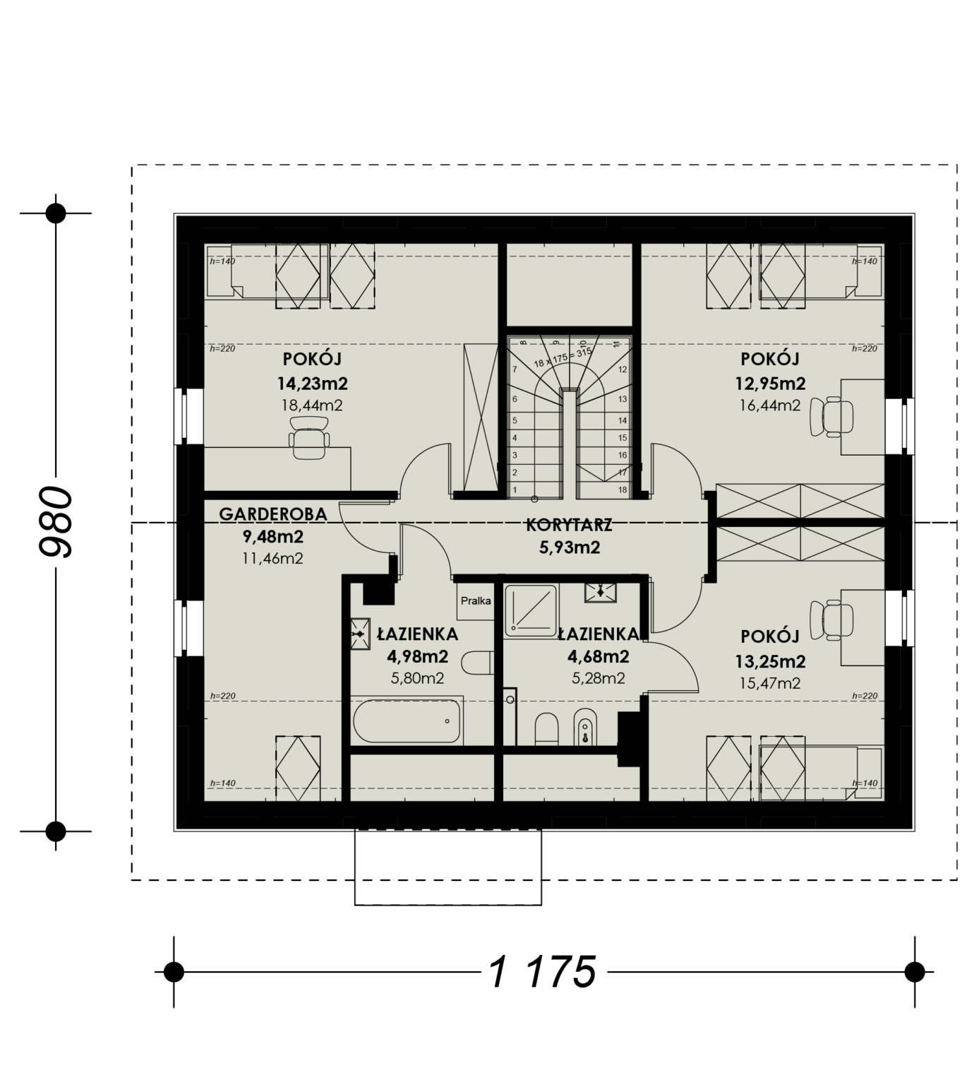
Dużym atutem tego domu jest możliwość zaadaptowania, wykończenia w pierwszej fazie tylko parteru. Możliwość taką daje układ funkcjonalny parteru gdzie znajdują się aż dwie sypialnie dla rodziców i jednego dziecka. O wykończeniu poddasza możemy pomyśleć dopiero w momencie powiększenia się rodziny.
Działka
Czy Twój wymarzony dom zmieści się na działce?
Aby odpowiedzieć na to pytanie, należy sprawdzić, czy spełnia on wymagane parametry określone przez Miejscowy Plan Zagospodarowania Przestrzennego lub Warunki Zabudowy.
Dokumenty te szczegółowo określają charakterystyczne parametry budynków jak kąt nachylenia i geometria dachu, powierzchnię zabudowy, wysokość budynku czy wymaganą na działce ilość miejsc parkingowych i powierzchnię biologicznie czynną czy współczynnik zabudowy działki.
Chętnie sprawdzimy, czy wybrany przez Ciebie projekt spełnia wszelkie wymogi.
Pobierz rysunki szczegółowe
Pobierz kartę katalogową
Pobierz rzut budynku w skali 1:500
Dane szczegółowe
Powierzchnia użytkowa
151.05 m2
Powierzchnia zabudowy
113.86 m2
Szerokość budynku
11.75 m
Długość budynku
9.80 m
Kubatura
415,95 m3
Ilość pokoi
6
Antresola
Kąt nachylenia dachu
29 o
Powierzchnia dachu
164.56 m2
Odbicie lustrzane
Minimalna szerokość działki
18.75 m
Minimalna długość działki
17.80 m
Wysokość budynku
8.0 m
Kondygnacje
Styl
Garaż
Kominek
Kuchnia
Ogrzewanie
Piwnica
Rodzaj dachu
Typ zabudowy
Ściany
Strop
Tchnologia wykonania
Konstrukcja dachu
Wentylacja
Wjazd od południa
Zawartość projektu
TK20L
W projekcie domu otrzymasz:
- projekt architektoniczno-budowlany w trzech egzemplarzach
- projekt techniczny w trzech egzemplarzach a w nim:
- projekt konstrukcji budynku
- projekt wewnętrznych instalacji sanitarnych budynku wraz z charakterystyką energetyczną
- projekt wewnętrznych instalacji elektrycznych budynku
- kopie uprawnień zawodowych architekta i inżynierów branżowych
Darmowe dodatki
W każdym projekcie domu znajdziesz:
- Bezpłatna zgoda na wprowadzenie zmian do projektu
- Tablica informacyjna na plac budowy
- Dziennik budowy
- Kupon rabatowy na kolejny projekt

Płatne dodatki do projektu
Do każego projektu możesz zamówić:
- Kosztorys inwestorski z przedmiarem robót i zestawieniem materiałów
- Zamienny projekt instalacji ogrzewania – pompa ciepła
- Zamienny projekt instalacji ogrzewania – paliwo stałe
- Zamienny projekt instalacji ogrzewania – gaz
- Dodatkowy drukowany egzemplarz projektu – ofertowy
- Projekt szczelnego zbiornika na ścieki – “szambo”
Powierzchnia użytkowa
151.05 m2
Ilość pokoi
6
Kąt nachylenia dachu
29 o
Odbicie lustrzane
Minimalna szerokość działki
18.75 m
Minimalna długość działki
17.80 m
Wysokość budynku
8.0 m
Porozmawiajmy o tym projekcie

















































